Zvolte si typ nemovitosti

Nemovitosti v mé nabídce

Nájem 2+1 (lze využít i jako 3+1) s balkonem, Zliv

cena v RK
Celkem 13 fotografií, zobrazit všechny
Prodejce:
Ing. Silvie Šťovíčková
telefon: +420725336599
info@prehledrealit.cz

Nájem 2+1 (lze využít i jako 3+1) s balkonem, Zliv

Cena:
cena v RK
Popis nemovitosti:

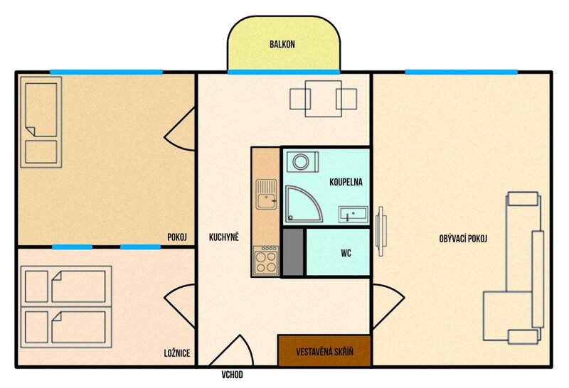
Pokud hledáte klidné bydlení s výbornou dostupností do Českých Budějovic i krásnou přírodou v okolí, pak vás tento byt ve Zlivi nadchne nejen svou polohou, ale i praktickou vnitřní dispozicí a zároveň i příjemnou atmosférou menšího města. Jedná se o světlý byt 2+1, který lze využít též jako 3+1 (jeden z pokojů je rozdělen příčkou na 2 části), o velikosti 59 m². Byt je umístěný ve 3. patře čtyřpatrového domu s výtahem. Dům se nachází v klidné části města Zliv, v ulici Dukelská. Byt prošel částečnou rekonstrukcí – nová koupelna, WC a dlažba. Součástí je balkon a zděný sklep. Kuchyň je vybavena moderní kuchyňskou linkou se spotřebiči: indukční varná deska, elektrická trouba, digestoř, lednice, mikrovlnná trouba a jídelní stůl. Dále je k dispozici nová pračka. V předsíni se nachází vestavěná skříň, která poskytuje dostatek úložného prostoru. Všechna okna mají žaluzie. Byt je vhodný pro ty, kteří hledají klidné bydlení s výbornou dopravní dostupností a vším potřebným v dosahu. Náklady: nájemné: 12.500 Kč / měsíc, zálohy na služby (pro 2 osoby) 3.000 Kč / měsíc, elektřina: cca 800 Kč / měsíc. Celkem měsíčně: 16.300 Kč. Jistina (kauce): 16.300 Kč. Provize RK 16.300 Kč. Lokalita: Zliv je příjemné, klidné město s kompletní občanskou vybaveností – najdete zde školu, školku, obchody, poštu, lékaře i restaurace. Leží jen 10 km od Českých Budějovic a 3 km od Hluboké nad Vltavou, kam se snadno dostanete autem i vlakem. Milovníci přírody a aktivního života ocení blízkost rybníka Bezdrev, ideálního pro koupání, rybaření i vodní sporty. Okolí nabízí cyklostezky a turistické trasy vedoucí na Hlubokou nebo do Českých Budějovic. V Hluboké nad Vltavou se nachází ZOO, golfové hřiště, wellness centrum, plavecký areál i mnoho restaurací. Přímo ve Zlivi je pak sportovní areál s hřišti a možnostmi pro tenis, fotbal i běh. Zliv je živé město s přátelskou atmosférou, kde se pravidelně konají místní slavnosti, koncerty a kulturní akce. Majitel si vyhrazuje právo vybrat si nájemce dle vlastních kritérií.

Typ nemovitosti:
Byt
Číslo nemovitosti:
71025_25Zliv
Operace:
Pronájem
Rezervace:
Rezervováno
Vlastnictví:
Osobní
Adresa:
Zliv
Dukelská 507
K nastěhování od:
7.10.2025
Plocha podlahová:
63 m2
Plocha balkonu:
1 m2
Plocha sklepa:
2 m2
Podlaží:
4. podlaží z 4 podlaží celkem
Stav objektu:
Po rekonstrukci
Konstrukce:
Panelová
Umístění objektu:
Klidná část obce
Komunikace:
Asfaltová, zpevněná
Info od makléře:
Doporučuji osobní prohlídku bytu.
Vydaný certifikát:
B - Velmi úsporná
Typ certifikátu:
vyhláška č. 264/2020 Sb
Je zobrazena tato GPS souřadnice:
49° 04' 3.773"N, 14° 22' 16.942"E

Hledáte partnera pro prodej nemovitosti?
Jste na správné adrese

Kontaktujte mně

Pro své klienty se vždy snažím zajistit dokonalý servis. Připravím Vaši nemovitost k prodeji, nafotím profesionální fotografie, natočím videoprohlídku, zajistím inzerci jak na sociálních sítích tak na inzertních portálech.

Mám zájem o spolupráci