Zvolte si typ nemovitosti

Nemovitosti v mé nabídce

Rodinný dům 6+kk s garáží, terasou a zahradou, Číčovice.

cena v RK
Celkem 22 fotografií, zobrazit všechny
Prodejce:
Ing. Silvie Šťovíčková
telefon: +420725336599
info@prehledrealit.cz

Rodinný dům 6+kk s garáží, terasou a zahradou, Číčovice.

Cena:
cena v RK
Popis nemovitosti:

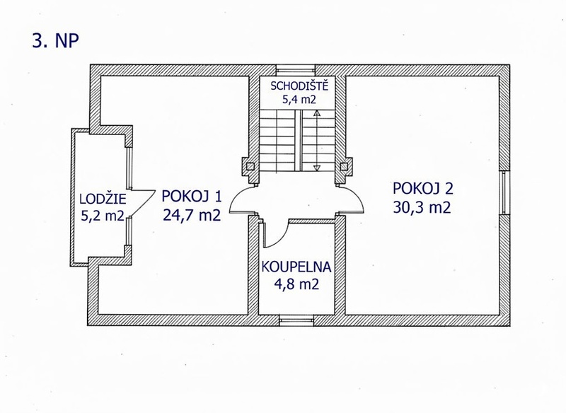
Nabízíme rodinný dům s velkým potenciálem o vnitřní dispozici 6+kk. Dům byl postavený v polovině 90. let a nabízí nejen komfortní bydlení pro jednu rodinu, ale snadnou stavební úpravou jej lze proměnit i na vícegenerační bydlení se 2–3 samostatnými bytovými jednotkami se 2 oddělenými vchody. Dům je třípodlažní, umístěný v mírném slunném jižním svahu. Hlavním vchodem z ulice se vstupuje do 2. nadzemního podlaží, kde se nachází předsíň, obytná kuchyně, ložnice, koupelna, samostatné WC a velká terasa (nad garáží).
V podkroví domu jsou: 2 ložnice (z toho jedna má prosklenou lodžií), koupelna se sprchou + WC. V přízemí se nachází: 2× ložnice, sprcha + WC, kotelna, prádelna, sklep, dílna, komora a garáž.
Topení je ústřední plynovým kotlem, dále jsou zde osazeny solární panely na ohřev teplé vody (výhodná úspora energií) na jižní straně domu. Okna jsou plastová s příjemným výhledem do krajiny a zahrady. Druhé a třetí nadzemní podlaží je zatepleno polystyrenem. Dům disponuje 2 komíny, z toho jeden není využíván a tak poskytuje možnost osazení krbu či krbových kamen. Voda je z vlastní kopané studny umístěné v zahradě, která má jižní slunnou orientaci. Kanalizace v obci není zavedena, odpad je sveden do jímky. Lokalita Číčovice je ideální kombinací klidného venkovského bydlení a výborné dostupnosti Prahy. Obec leží jen cca 2 km od dálnice D7, cca 10 minut autem od OC Šestka Praha-Ruzyně a přibližně 12 km od metra. Okolí nabízí krásnou přírodu protkanou cyklotrasami. Protéká zde Zákolanský potok – jehož malebné břehy jsou chráněnou přírodní památkou. Zřícenina hradu Okoř i příjemně zvlněná krajina okolí zvou na romantické procházky. Prohlídka nemovitosti je možná též o víkendu, projektová dokumentace je k dispozici – pro více informací volejte RK. (Energetický štítek budovy se zpracovává).

Typ nemovitosti:
Dům, vila
Číslo nemovitosti:
2022-03-29
Operace:
Prodej
Adresa:
Číčovice 100
Plocha pozemku:
841 m2
Plocha zastavěná:
139 m2
Plocha podlahová:
300 m2
Plocha terasy:
18 m2
Sklepní podlaží:
1. sklepních podlaží
Stav objektu:
Velmi dobrý
Konstrukce:
Cihlová
Umístění objektu:
Klidná část obce
Komunikace:
Asfaltová, zpevněná
Konstrukce popis:
tvárnice
Výbava - popis:
kůlna na nářadí, terasa
Info od makléře:
Doporučuji osobní prohlídku nemovitosti.
Vydaný certifikát:
G - Mimořádně nehospodárná
Typ certifikátu:
vyhláška č. 264/2020 Sb
Je zobrazena tato GPS souřadnice:
50° 09' 14.142"N, 14° 15' 7.754"E

Hledáte partnera pro prodej nemovitosti?
Jste na správné adrese

Kontaktujte mně

Pro své klienty se vždy snažím zajistit dokonalý servis. Připravím Vaši nemovitost k prodeji, nafotím profesionální fotografie, natočím videoprohlídku, zajistím inzerci jak na sociálních sítích tak na inzertních portálech.

Mám zájem o spolupráci